Заказать проект электроснабжения здесь
![]() |
![]() |
| Автоматизация Умный Дом | Электролаборатория |
![]() |
![]() |
| Электроснабжение квартиры | Электроснабжение коттежда |
![]() |
![]() |
| Электроснабжение офиса | Электроснабжение магазина |
Выгодная цена электроснабжения
Профессиональный монтаж электроснабжения
Стоимость электроснабжения: особенности формирования
Без предварительного плана монтажа и соответствующих расчетов полноценная работа системы электрификации попросту невозможна. Именно поэтому, проект электроснабжения является не важной составляющей будущих работ, но и основной, гарантирующей безопасность эксплуатации электрических приборов. Компания «Росинтерпроект» сегодня готова предложить выполнение проекта электроснабжения, а также ряд сопутствующих услуг, призванных создать оптимальные условия для дальнейшего строительства и монтажа в Москве. При этом клиенты могут быть уверены, будет ли это замена электрики, диагностика элементов системы, или проведение исследований: обслуживание выполняется на высшем уровне.
Что мы предлагаем
Высокая квалификация сотрудников компании, и полностью отлаженная работа коллектива обеспечивают все необходимые условия для плодотворной работы в сфере электрификации частных домов и производственных комплексов. У нас вы можете заказать проект электроснабжения, а также все сопутствующие виды работ таких объектов, как:
- квартира либо офис;
- дом и пристройки;
- торговый комплекс или небольшой магазин;
- промышленная зона;
- строительная площадка и др.
Помимо этого, для всех, кто сомневается в том, нужен ли проект, мы готовы предоставить необходимую информацию и провести консультацию по вопросам, касающимся каждого частного случая
8 (916) 402-05-69
Ежедневно с 9:00 до 22:00
Что включено в услугу создания проекта сетей электроснабжения
Заботясь об удобстве своих клиентов, наша команда специалистов готова обеспечить все условия для успешного завершения дела. При этом основными позициями, которые подразумевает проект системы электроснабжения, становятся:
- разработка технического задания;
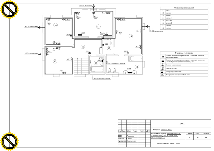
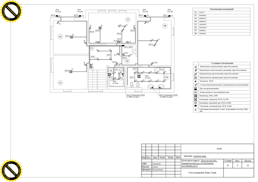
- детальное обоснование проекта, включая нагрузки, распределения мощности, маршруты сети, а также расположение выключателей и розеток;
- создание проектной документации и пр.
В основе нашей работы лежит возможность предоставить клиенту комплексный подход для реализации задачи электроснабжения, при которой цена останется доступной, независимо от уровня сложности. При этом каждый из проектов электроснабжения дома, торгового комплекса, или производственного здания, создается с учетом всех норм безопасности (ПУЭ, СНИП).
Стоимость проекта электроснабжения квартиры, коттеджа, офиса
Стоимость проекта является варьирующей величиной, которая зависит от сложности работ и типа сооружения. Ознакомиться с вариантами, доступными нашим клиентам, можно в специальном разделе сайта компании. В зависимости от поставленной задачи, у нас вы можете получить проект электроснабжения частного дома, квартиры, офиса, коттеджа, либо строения любого другого назначения. При этом разработка проекта электроснабжения осуществляется в соответствие с требованиями заказчика. Такой подход позволяет нашим специалистам предложить следующие варианты:
- типовой проект, уже готовый к реализации;
- индивидуальный проект, который разрабатывается с учетом всех особенностей электроснабжения строения и пожеланий клиента;
- «комплексное» решение, при котором типовой вариант корректируется под нужды заказчика.
Важно отметить, что стоимость проекта электроснабжения предоставляется только после проведения предварительных подсчетов, включающих (при выборе индивидуального или комбинированного варианта) весь спектр работ специалистов после выполнения его согласования с соответствующими органами власти. Если вам требуется проект электроснабжения, услуги нашей компании становятся верным и выгодным решением.
![]() |
![]() |
![]() |
![]() |









